Santa Monica’s decades long debate over the future of its airport continues to simmer with the unveiling of three potential visions for the property should it close in 2028.
A May 17 workshop, organized by the city's Public Works department and design consultants Sasaki Design Associates, drew throngs of residents to examine proposals that would transform the 192-acre site into various combinations of parkland, recreational facilities and development. All three scenarios designate at least two-thirds of the airport property for park use, but differ significantly in scope, amenities and whether housing would be included.
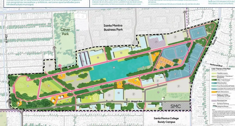
Scenario 1, dubbed "Reuse, Restoration and Resilience," offers the most conservative approach and remains compliant with Measure LC, a 2014 voter-approved initiative that limits future development to park and recreational uses. The plan centers around a 15-acre municipal reservoir built on the former runway, surrounded by 15 acres of urban forest and 8 acres of native meadows. Additional features include a 5-acre community farm, 22 acres of sports facilities with four soccer fields and two baseball diamonds, and a 2,000-seat amphitheater. The scenario preserves 46 acres of existing buildings through adaptive reuse and includes no new commercial development or housing.
Scenario 2, called "Weaving Park and Community," incorporates 34 acres of urban forest and 21 acres of various natural habitats organized around "The Bend," a meandering multi-use path. The plan features a 7-acre pond, water treatment plant, and a large outdoor performing arts center accommodating 20,000 attendees. Unlike Scenario 1, this proposal includes 32 acres designated for housing and commercial development, along with three new roads and a transit hub.
The most ambitious proposal, Scenario 3 "Growing Park, Growing Community," envisions the site as Santa Monica's largest public park alongside a complete residential neighborhood. Key features include a 10-acre recreational lake, 21 acres of sports fields, an aquatic center, botanical gardens and cultural facilities. The plan incorporates 48 acres of new housing and commercial development, creating integrated neighborhood blocks. Additional amenities include 6 miles of pedestrian and bike trails, waterfront restaurants and various recreational facilities.
Each scenario employs different financial strategies. Scenario 1 relies on public funding through General Obligation bonds and special use funds, combined with external grants and revenue from facility leases and programs. Scenarios 2 and 3 incorporate real estate development revenue as a significant funding source, with Scenario 3 designed to achieve financial self-sustainability through its extensive commercial components.
The proposals have generated strong reactions from local organizations and residents who broadly agree that the airport should close but differ on the amount, if any, housing that should be built.
The Santa Monica Airport2Park Foundation advocates for focusing on Measure LC-compliant plans that don't require voter approval.
"The public voted overwhelmingly for a park when they passed Measure LC in 2014, and it is imperative that that vision be respected before alternatives are considered," said Neil Carrey, the foundation's president.
The Foundation is part of a larger group, The Great Park Coalition, which boasts 750 individual supporters and over 60 nonprofit organizations
Joe Pertel, a park supporter, noted that public surveys consistently favor traditional park amenities over housing.
"Out of the top 40 results from the earlier surveys, nearly all of them were in support of what would be considered traditional park-related amenities," Pertel said. "When it came to housing, it ranked 39th in terms of what people wanted and second in what people least wanted."
However, some community groups favor recommendations that would include housing on the airport land. The hospitality union that represents most local hotel workers, Unite Here Local 11, brought several members to a recent City Council meeting to criticize the input process so far saying their work schedules prevented them from participating and the city should do more to incorporate their desire for housing into its plans.
The No Jets advocacy group has expressed concern about potential efforts to overturn Measure LC, warning that housing recommendations could be used to justify another citywide vote. "If we lose that vote, we lose the park—permanently," the group said in a recent email.
City officials plan to continue the public input process through the end of the year, with the goal of selecting a preferred scenario for further development and environmental review. Anyone can view the three proposals at https://www.smacproject.com/ and use an interactive tool to provide feedback on the options.

